takeofficeなら掲載物件の仲介手数料は無料です

神田KSビル

住所 東京都千代田区鍛冶町1-8-6
交通 JR山手線神田」 徒歩2分
JR総武線(快速)新日本橋」 徒歩4分
竣工 1990年10月 構造 SRC
規模 地上7階, 地下1階 耐震基準 新耐震基準
床構造 フリーアクセス 空調設備 個別空調
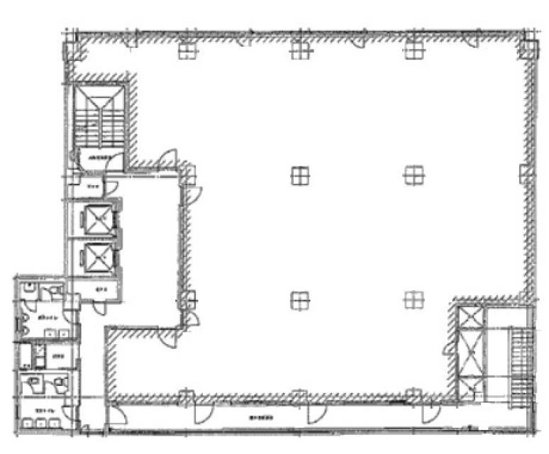
天井高 - 基準階面積 113.68坪(375.8m2)
コンセント容量 - 施工会社

最新の募集状況や類似物件については、
こちらにお問い合わせください。

神田KSビル 外観

外観

  • 神田KSビル エントランス写真

    エントランス

内見やお見積りなどの各種お問い合わせ

全物件
仲介手数料無料
仲介から
入居工事まで
ワンストップで対応
経験豊富なスタッフが
スピード感をもって
対応

周辺での似た条件の物件

非公開物件 多数あり!

お問い合わせフォーム