takeofficeなら掲載物件の仲介手数料は無料です

THE GATE Otemachi

住所 東京都千代田区内神田1-4-13
交通 東京メトロ半蔵門線大手町」 徒歩6分
東京メトロ丸ノ内線淡路町」 徒歩7分
都営新宿線小川町」 徒歩7分
竣工 1986年 構造 SRC
規模 地上7階, 地下0階 耐震基準 新耐震基準
床構造 - 空調設備 セントラル空調
天井高 2400mm 基準階面積 --
コンセント容量 - 施工会社

最新の募集状況や類似物件については、
こちらにお問い合わせください。

NOW PRINTING

外観

  • NOW PRINTING

    エントランス

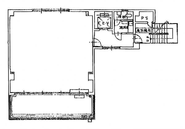
  • 2F

    2F

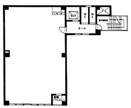
  • 6F

    6F

内見やお見積りなどの各種お問い合わせ

全物件
仲介手数料無料
仲介から
入居工事まで
ワンストップで対応
経験豊富なスタッフが
スピード感をもって
対応

※「ご相談」と記載されている項目について
賃貸人が募集賃料条件を守秘義務の関係から明示していない場合に、【ご相談】と記載しております。
フリーレント(賃料免除)期間、使用面積、入居時期、テナント様の与信などによりご提示できる条件が若干変化いたします。
お手数ですが、詳細につきましては、上記よりお問い合わせください。

周辺での似た条件の物件

非公開物件 多数あり!

お問い合わせフォーム