takeofficeなら掲載物件の仲介手数料は無料です

内神田FTビル

住所 東京都千代田区内神田1-15-10
交通 東京メトロ千代田線新御茶ノ水」 徒歩3分
都営新宿線小川町」 徒歩3分
東京メトロ丸ノ内線淡路町」 徒歩4分
竣工 1964年 月 構造 SRC
規模 地上9階, 地下2階 耐震基準 旧耐震基準
床構造 フリーアクセス 空調設備 個別空調
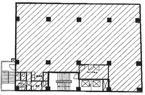
天井高 - 基準階面積 83坪(274m2)
コンセント容量 - 施工会社

最新の募集状況や類似物件については、
こちらにお問い合わせください。

内神田FTビル 外観

外観

  • 内神田FTビル エントランス写真

    エントランス

  • 基準階

    基準階

内見やお見積りなどの各種お問い合わせ

全物件
仲介手数料無料
仲介から
入居工事まで
ワンストップで対応
経験豊富なスタッフが
スピード感をもって
対応

周辺での似た条件の物件

非公開物件 多数あり!

お問い合わせフォーム