takeofficeなら掲載物件の仲介手数料は無料です

内山ビル

住所 東京都千代田区内神田2-12-5
交通 JR山手線神田」 徒歩4分
東京メトロ丸ノ内線淡路町」 徒歩6分
都営新宿線小川町」 徒歩6分
竣工 1983年02月 構造 SRC
規模 地上8階 耐震基準 新耐震基準
床構造 フリーアクセス 空調設備 個別空調
天井高 2500mm 基準階面積 139.82坪(462.21m2)
コンセント容量 - 施工会社
坪面積 用途 賃料 坪単価 共益費 入居可能日
7 139.82坪 事務所 相談 相談 相談 2026年7月1日
8 104.96坪 事務所 相談 相談 相談 2026年9月1日
内山ビル 外観

外観

  • 内山ビル エントランス写真

    エントランス

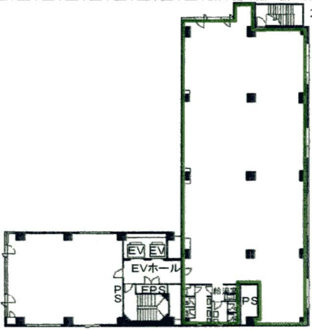
  • 基準階

    基準階

内見やお見積りなどの各種お問い合わせ

全物件
仲介手数料無料
仲介から
入居工事まで
ワンストップで対応
経験豊富なスタッフが
スピード感をもって
対応

※「ご相談」と記載されている項目について
賃貸人が募集賃料条件を守秘義務の関係から明示していない場合に、【ご相談】と記載しております。
フリーレント(賃料免除)期間、使用面積、入居時期、テナント様の与信などによりご提示できる条件が若干変化いたします。
お手数ですが、詳細につきましては、上記よりお問い合わせください。

周辺での似た条件の物件

非公開物件 多数あり!

お問い合わせフォーム