takeofficeなら掲載物件の仲介手数料は無料です

ディアマントビル

住所 東京都千代田区神田須田町1-5
交通 JR山手線神田」 徒歩3分
東京メトロ丸ノ内線淡路町」 徒歩4分
都営新宿線小川町」 徒歩4分
竣工 1984年08月 構造 鉄骨造
規模 地上10階 耐震基準 新耐震基準
床構造 - 空調設備 個別空調
天井高 2400mm 基準階面積 33.33坪(110.18m2)
コンセント容量 - 施工会社

最新の募集状況や類似物件については、
こちらにお問い合わせください。

ディアマントビル 外観

外観

  • ディアマントビル エントランス写真

    エントランス

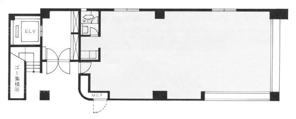
  • 基準階

    基準階

  • 1F

    1F

  • 2F

    2F

内見やお見積りなどの各種お問い合わせ

全物件
仲介手数料無料
仲介から
入居工事まで
ワンストップで対応
経験豊富なスタッフが
スピード感をもって
対応

周辺での似た条件の物件

非公開物件 多数あり!

お問い合わせフォーム