takeofficeなら掲載物件の仲介手数料は無料です

第2進盛ビル

住所 東京都千代田区神田司町2-15-4
交通 都営新宿線小川町」 徒歩2分
JR山手線神田」 徒歩7分
東京メトロ丸ノ内線淡路町」 徒歩2分
竣工 1986年02月 構造 RC
規模 地上7階 耐震基準 新耐震基準
床構造 フリーアクセス 空調設備 個別空調
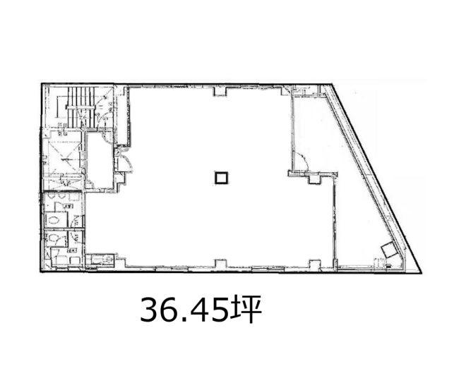
天井高 2400mm 基準階面積 42.17坪(139.4m2)
コンセント容量 - 施工会社

最新の募集状況や類似物件については、
こちらにお問い合わせください。

第2進盛ビル 外観

外観

  • 第2進盛ビル エントランス写真

    エントランス

  • 基準階(2~4F)

    基準階(2~4F)

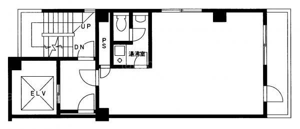
  • 1F

    1F

  • 6F

    6F

内見やお見積りなどの各種お問い合わせ

全物件
仲介手数料無料
仲介から
入居工事まで
ワンストップで対応
経験豊富なスタッフが
スピード感をもって
対応

周辺での似た条件の物件

非公開物件 多数あり!

お問い合わせフォーム