takeofficeなら掲載物件の仲介手数料は無料です

ISビル

住所 東京都千代田区内神田3-15-3
交通 JR山手線神田」 徒歩3分
東京メトロ丸ノ内線淡路町」 徒歩5分
都営新宿線小川町」 徒歩6分
竣工 2006年09月 構造 RC
規模 地上8階 耐震基準 新耐震基準
床構造 フリーアクセス 空調設備 個別空調
天井高 - 基準階面積 28.04坪(92.69m2)
コンセント容量 - 施工会社

最新の募集状況や類似物件については、
こちらにお問い合わせください。

ISビル 外観

外観

  • ISビル エントランス写真

    エントランス

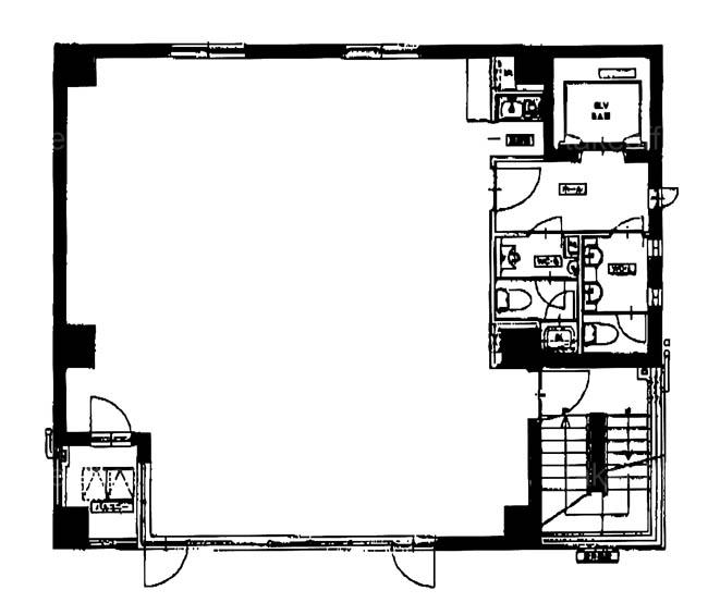
  • 基準階(2~5F)

    基準階(2~5F)

内見やお見積りなどの各種お問い合わせ

全物件
仲介手数料無料
仲介から
入居工事まで
ワンストップで対応
経験豊富なスタッフが
スピード感をもって
対応

周辺での似た条件の物件

非公開物件 多数あり!

お問い合わせフォーム