takeofficeなら掲載物件の仲介手数料は無料です

神田中央通ビル

住所 東京都千代田区鍛冶町2-3-3
交通 JR山手線神田」 徒歩1分
東京メトロ銀座線神田」 徒歩1分
東京メトロ銀座線日本橋」 徒歩5分
竣工 1989年 月 構造 鉄骨造
規模 地上9階 耐震基準 新耐震基準
床構造 フリーアクセス 70mm 空調設備 個別空調
天井高 2450mm 基準階面積 93.75坪(309.92m2)
コンセント容量 30VA/m2 施工会社

最新の募集状況や類似物件については、
こちらにお問い合わせください。

神田中央通ビル 外観

外観

  • 神田中央通ビル エントランス写真

    エントランス

  • 基準階

    基準階

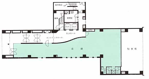
  • 1F

    1F

  • 2F

    2F

  • 8F

    8F

内見やお見積りなどの各種お問い合わせ

全物件
仲介手数料無料
仲介から
入居工事まで
ワンストップで対応
経験豊富なスタッフが
スピード感をもって
対応

周辺での似た条件の物件

非公開物件 多数あり!

お問い合わせフォーム