takeofficeなら掲載物件の仲介手数料は無料です

D2ビル(旧:デジタルドリームビル)

住所 東京都千代田区神田須田町2-19
交通 東京メトロ銀座線神田」 徒歩4分
東京メトロ日比谷線秋葉原」 徒歩4分
都営新宿線岩本町」 徒歩5分
竣工 1986年06月 構造 鉄骨造
規模 地上9階, 地下1階 耐震基準 新耐震基準
床構造 フリーアクセス 50mm 空調設備 個別空調
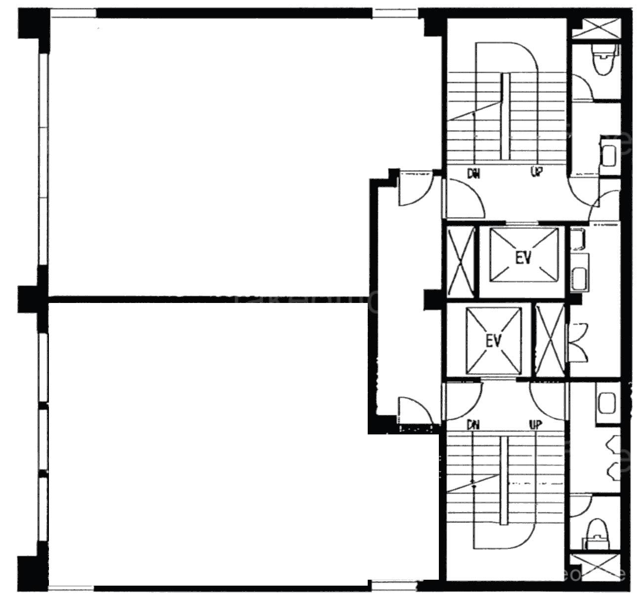
天井高 2730mm 基準階面積 67.11坪(221.85m2)
コンセント容量 - 施工会社

最新の募集状況や類似物件については、
こちらにお問い合わせください。

D2ビル(旧:デジタルドリームビル) 外観

外観

  • D2ビル(旧:デジタルドリームビル) エントランス写真

    エントランス

  • 7F

    7F

内見やお見積りなどの各種お問い合わせ

全物件
仲介手数料無料
仲介から
入居工事まで
ワンストップで対応
経験豊富なスタッフが
スピード感をもって
対応

周辺での似た条件の物件

非公開物件 多数あり!

お問い合わせフォーム