takeofficeなら掲載物件の仲介手数料は無料です

神田Y5ビル

住所 東京都千代田区神田多町2-1-4
交通 JR山手線神田」 徒歩3分
東京メトロ丸ノ内線淡路町」 徒歩4分
竣工 2012年02月 構造 RC
規模 地上11階 耐震基準 新耐震基準
床構造 - 空調設備 個別空調
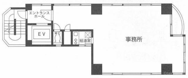
天井高 - 基準階面積 18.23坪(60.26m2)
コンセント容量 - 施工会社

最新の募集状況や類似物件については、
こちらにお問い合わせください。

神田Y5ビル 外観

外観

  • 神田Y5ビル エントランス写真

    エントランス

内見やお見積りなどの各種お問い合わせ

全物件
仲介手数料無料
仲介から
入居工事まで
ワンストップで対応
経験豊富なスタッフが
スピード感をもって
対応

周辺での似た条件の物件

非公開物件 多数あり!

お問い合わせフォーム