takeofficeなら掲載物件の仲介手数料は無料です

神田司町ビル

住所 東京都千代田区神田司町2-14-3
交通 東京メトロ丸ノ内線淡路町」 徒歩2分
都営新宿線小川町」 徒歩3分
JR山手線神田」 徒歩5分
竣工 1996年03月 構造 SRC+SRC
規模 地上9階, 地下2階 耐震基準 新耐震基準
床構造 フリーアクセス 65mm 空調設備 個別空調
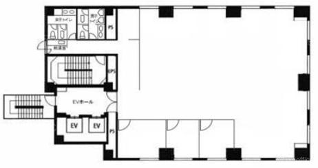
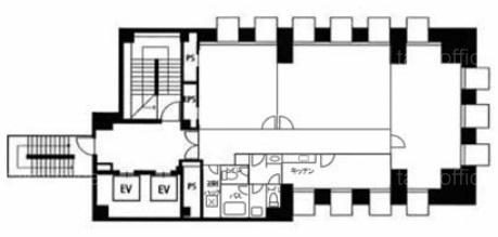
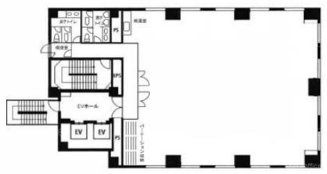
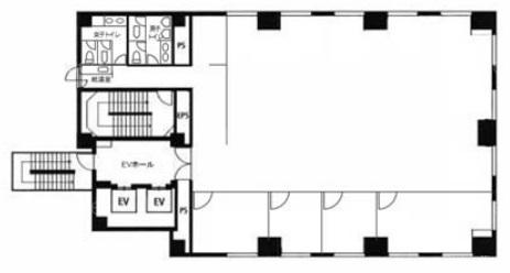
天井高 2535mm 基準階面積 101.33坪(334.98m2)
コンセント容量 - 施工会社

最新の募集状況や類似物件については、
こちらにお問い合わせください。

神田司町ビル 外観

外観

内見やお見積りなどの各種お問い合わせ

全物件
仲介手数料無料
仲介から
入居工事まで
ワンストップで対応
経験豊富なスタッフが
スピード感をもって
対応

周辺での似た条件の物件

非公開物件 多数あり!

お問い合わせフォーム