takeofficeなら掲載物件の仲介手数料は無料です

住友水道橋ビル

住所 東京都千代田区神田猿楽町2-7-8
交通 JR総武本線水道橋」 徒歩3分
都営三田線水道橋」 徒歩3分
JR中央線御茶ノ水」 徒歩10分
竣工 1988年01月 構造 SRC
規模 地上8階 耐震基準 新耐震基準
床構造 フリーアクセス 100mm 空調設備 個別空調
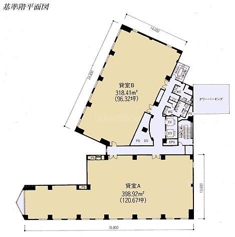
天井高 2500mm 基準階面積 221.88坪(733.49m2)
コンセント容量 50VA/m2 施工会社

最新の募集状況や類似物件については、
こちらにお問い合わせください。

住友水道橋ビル 外観

外観

  • NOW PRINTING

    エントランス

  • 基準階

    基準階

内見やお見積りなどの各種お問い合わせ

全物件
仲介手数料無料
仲介から
入居工事まで
ワンストップで対応
経験豊富なスタッフが
スピード感をもって
対応

周辺での似た条件の物件

非公開物件 多数あり!

お問い合わせフォーム