takeofficeなら掲載物件の仲介手数料は無料です

廣瀬お茶の水ビル

住所 東京都千代田区神田駿河台2-1-47
交通 JR中央線御茶ノ水」 徒歩3分
東京メトロ千代田線新御茶ノ水」 徒歩6分
東京メトロ半蔵門線神保町」 徒歩9分
竣工 1985年11月 構造 SRC
規模 地上7階, 地下1階 耐震基準 新耐震基準
床構造 フリーアクセス 40mm 空調設備 個別空調
天井高 2500mm 基準階面積 86坪(286m2)
コンセント容量 - 施工会社

最新の募集状況や類似物件については、
こちらにお問い合わせください。

廣瀬お茶の水ビル 外観

外観

  • 廣瀬お茶の水ビル エントランス写真

    エントランス

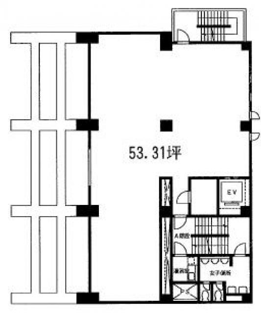
  • 5F

    5F

内見やお見積りなどの各種お問い合わせ

全物件
仲介手数料無料
仲介から
入居工事まで
ワンストップで対応
経験豊富なスタッフが
スピード感をもって
対応

周辺での似た条件の物件

非公開物件 多数あり!

お問い合わせフォーム