takeofficeなら掲載物件の仲介手数料は無料です

中村ビル

住所 東京都千代田区神田小川町2-1-13
交通 都営新宿線小川町」 徒歩3分
東京メトロ丸ノ内線淡路町」 徒歩4分
東京メトロ千代田線新御茶ノ水」 徒歩4分
竣工 1982年05月 構造 SRC
規模 地上10階 耐震基準 新耐震基準
床構造 フリーアクセス 50mm 空調設備 個別空調
天井高 2350mm 基準階面積 26.17坪(86.51m2)
コンセント容量 - 施工会社

最新の募集状況や類似物件については、
こちらにお問い合わせください。

中村ビル 外観

外観

  • 中村ビル エントランス写真

    エントランス

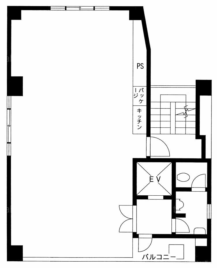
  • 基準階(3~6F)

    基準階(3~6F)

内見やお見積りなどの各種お問い合わせ

全物件
仲介手数料無料
仲介から
入居工事まで
ワンストップで対応
経験豊富なスタッフが
スピード感をもって
対応

周辺での似た条件の物件

非公開物件 多数あり!

お問い合わせフォーム