takeofficeなら掲載物件の仲介手数料は無料です

小川町B5ビル

住所 東京都千代田区神田小川町2-2-2
交通 東京メトロ千代田線新御茶ノ水」 徒歩4分
都営新宿線小川町」 徒歩1分
東京メトロ丸ノ内線淡路町」 徒歩2分
竣工 1987年04月 構造 鉄骨造
規模 地上9階 耐震基準 新耐震基準
床構造 - 空調設備 個別空調
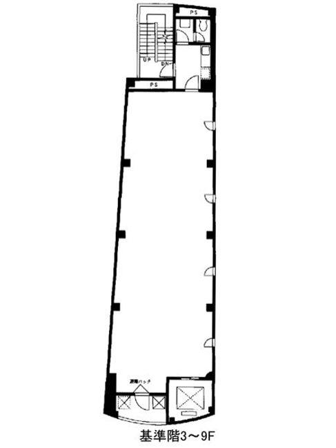
天井高 - 基準階面積 31.41坪(103.83m2)
コンセント容量 - 施工会社

最新の募集状況や類似物件については、
こちらにお問い合わせください。

小川町B5ビル 外観

外観

  • NOW PRINTING

    エントランス

内見やお見積りなどの各種お問い合わせ

全物件
仲介手数料無料
仲介から
入居工事まで
ワンストップで対応
経験豊富なスタッフが
スピード感をもって
対応

周辺での似た条件の物件

非公開物件 多数あり!

お問い合わせフォーム