takeofficeなら掲載物件の仲介手数料は無料です

BMビル

住所 東京都千代田区神田小川町3-1
交通 都営新宿線小川町」 徒歩3分
東京メトロ千代田線新御茶ノ水」 徒歩5分
東京メトロ半蔵門線神保町」 徒歩6分
竣工 1983年03月 構造 SRC
規模 地上7階, 地下1階 耐震基準 新耐震基準
床構造 フリーアクセス 空調設備 個別空調
天井高 - 基準階面積 67.24坪(222.28m2)
コンセント容量 - 施工会社

最新の募集状況や類似物件については、
こちらにお問い合わせください。

BMビル 外観

外観

  • NOW PRINTING

    エントランス

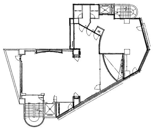
  • 基準階(3~5F)

    基準階(3~5F)

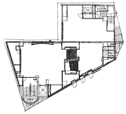
  • 1F

    1F

  • 2F

    2F

  • 6F

    6F

  • 7F

    7F

  • B1F

    B1F

内見やお見積りなどの各種お問い合わせ

全物件
仲介手数料無料
仲介から
入居工事まで
ワンストップで対応
経験豊富なスタッフが
スピード感をもって
対応

周辺での似た条件の物件

非公開物件 多数あり!

お問い合わせフォーム