takeofficeなら掲載物件の仲介手数料は無料です

住友不動産御茶ノ水ビル

住所 東京都千代田区神田駿河台2-3
交通 JR中央線御茶ノ水」 徒歩2分
東京メトロ丸ノ内線御茶ノ水」 徒歩3分
東京メトロ千代田線新御茶ノ水」 徒歩5分
竣工 1992年10月 構造 SRC
規模 地上8階, 地下2階 耐震基準 新耐震基準
床構造 - 空調設備 個別空調
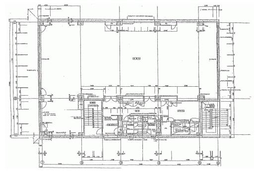
天井高 2500mm 基準階面積 103.32坪(341.55m2)
コンセント容量 - 施工会社

最新の募集状況や類似物件については、
こちらにお問い合わせください。

住友不動産御茶ノ水ビル 外観

外観

  • NOW PRINTING

    エントランス

  • 基準階

    基準階

内見やお見積りなどの各種お問い合わせ

全物件
仲介手数料無料
仲介から
入居工事まで
ワンストップで対応
経験豊富なスタッフが
スピード感をもって
対応

周辺での似た条件の物件

非公開物件 多数あり!

お問い合わせフォーム