| 住所 | 東京都千代田区神田駿河台2-10-4 | ||
|---|---|---|---|
| 交通 |
JR中央線 「御茶ノ水」 徒歩2分 東京メトロ千代田線 「新御茶ノ水」 徒歩2分 |
||
| 竣工 | 2026年10月 | 構造 | RC |
|---|---|---|---|
| 規模 | 地上9階 | 耐震基準 | 新耐震基準 |
| 床構造 | フリーアクセス 70mm | 空調設備 | 個別空調 |
| 天井高 | 2700mm | 基準階面積 | 53.37坪(176.43m2) |
| コンセント容量 | - | 施工会社 |
| 階 | 坪面積 | 用途 | 賃料 | 坪単価 | 共益費 | 入居可能日 |
|---|---|---|---|---|---|---|
| 9 | 53.14坪 | 事務所 | 相談 | 相談 | 相談 | 2026年10月初旬 |
| 2 | 43.2坪 | 店舗 | 相談 | 相談 | 相談 | 2026年10月初旬 |
| 3 | 53.14坪 | 事務所 | 相談 | 相談 | 相談 | 2026年10月初旬 |
| 4 | 53.14坪 | 事務所 | 相談 | 相談 | 相談 | 2026年10月初旬 |
| 5 | 53.14坪 | 事務所 | 相談 | 相談 | 相談 | 2026年10月初旬 |
| 6 | 53.14坪 | 事務所 | 相談 | 相談 | 相談 | 2026年10月初旬 |
| 7 | 53.14坪 | 事務所 | 相談 | 相談 | 相談 | 2026年10月初旬 |
| 8 | 53.14坪 | 事務所 | 相談 | 相談 | 相談 | 2026年10月初旬 |
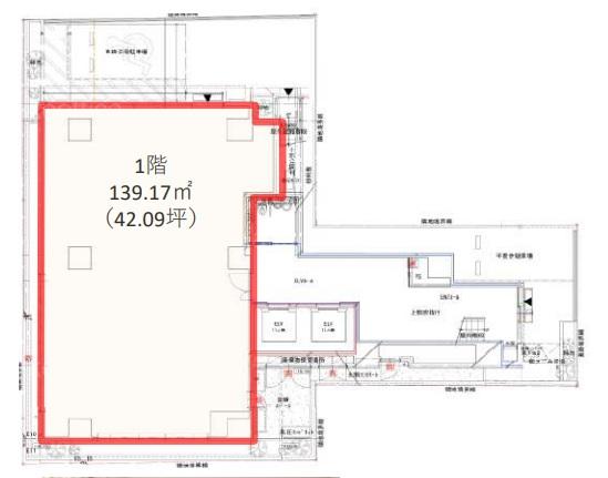
| 1 | 42.09坪 | 店舗 | 相談 | 相談 | 相談 | 2026年11月中旬 |
※「ご相談」と記載されている項目について
賃貸人が募集賃料条件を守秘義務の関係から明示していない場合に、【ご相談】と記載しております。
フリーレント(賃料免除)期間、使用面積、入居時期、テナント様の与信などによりご提示できる条件が若干変化いたします。
お手数ですが、詳細につきましては、上記よりお問い合わせください。