takeofficeなら掲載物件の仲介手数料は無料です

NC竹橋ビル

住所 東京都千代田区神田錦町2-11
交通 都営新宿線小川町」 徒歩6分
東京メトロ半蔵門線大手町」 徒歩6分
東京メトロ丸ノ内線淡路町」 徒歩8分
竣工 1997年03月 構造 鉄骨造
規模 地上9階, 地下1階 耐震基準 新耐震基準
床構造 フリーアクセス 80mm 空調設備 個別空調
天井高 2600mm 基準階面積 80.76坪(266.98m2)
コンセント容量 49VA/m2 施工会社

最新の募集状況や類似物件については、
こちらにお問い合わせください。

NC竹橋ビル 外観

外観

  • NC竹橋ビル エントランス写真

    エントランス

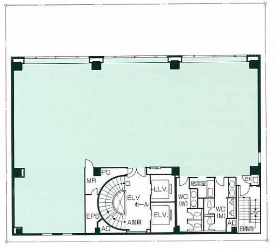
  • 基準階(3~9F)

    基準階(3~9F)

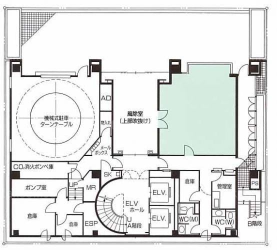
  • 1F

    1F

内見やお見積りなどの各種お問い合わせ

全物件
仲介手数料無料
仲介から
入居工事まで
ワンストップで対応
経験豊富なスタッフが
スピード感をもって
対応

周辺での似た条件の物件

非公開物件 多数あり!

お問い合わせフォーム