takeofficeなら掲載物件の仲介手数料は無料です

神田錦町ミハマビル(旧:神田NSビル)

住所 東京都千代田区神田錦町3-14-12
交通 東京メトロ半蔵門線神保町」 徒歩4分
東京メトロ東西線竹橋」 徒歩7分
竣工 1992年03月 構造 鉄骨造
規模 地上9階 耐震基準 新耐震基準
床構造 - 空調設備 個別空調
天井高 2500mm 基準階面積 39.06坪(129.12m2)
コンセント容量 - 施工会社

最新の募集状況や類似物件については、
こちらにお問い合わせください。

神田錦町ミハマビル(旧:神田NSビル) 外観

外観

  • 神田錦町ミハマビル(旧:神田NSビル) エントランス写真

    エントランス

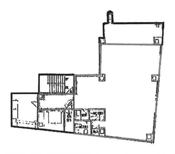
  • 基準階

    基準階

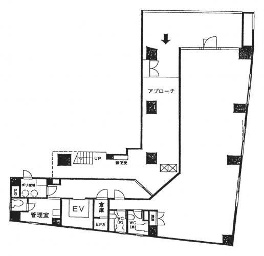
  • 1F

    1F

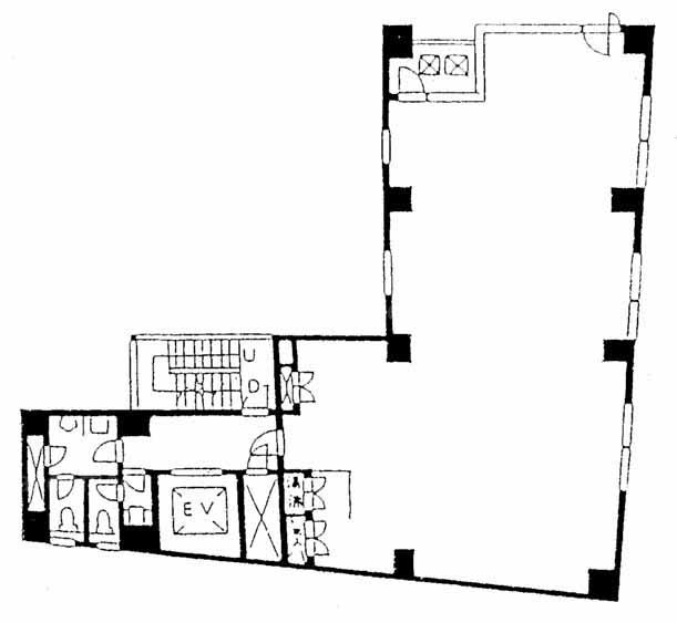
  • 9F

    9F

内見やお見積りなどの各種お問い合わせ

全物件
仲介手数料無料
仲介から
入居工事まで
ワンストップで対応
経験豊富なスタッフが
スピード感をもって
対応

周辺での似た条件の物件

非公開物件 多数あり!

お問い合わせフォーム