takeofficeなら掲載物件の仲介手数料は無料です

竹橋ビル

住所 東京都千代田区神田錦町2-1-8
交通 都営新宿線小川町」 徒歩6分
JR山手線神田」 徒歩8分
東京メトロ丸ノ内線淡路町」 徒歩8分
竣工 2005年12月 構造 鉄骨造
規模 地上10階 耐震基準 新耐震基準
床構造 フリーアクセス 75mm 空調設備 個別空調
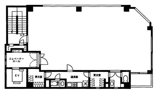
天井高 2550mm 基準階面積 36.27坪(119.9m2)
コンセント容量 - 施工会社

最新の募集状況や類似物件については、
こちらにお問い合わせください。

竹橋ビル 外観

外観

内見やお見積りなどの各種お問い合わせ

全物件
仲介手数料無料
仲介から
入居工事まで
ワンストップで対応
経験豊富なスタッフが
スピード感をもって
対応

周辺での似た条件の物件

非公開物件 多数あり!

お問い合わせフォーム