takeofficeなら掲載物件の仲介手数料は無料です

帝都三崎町ビル

住所 東京都千代田区神田三崎町2-7-10
交通 JR総武本線水道橋」 徒歩3分
都営三田線水道橋」 徒歩3分
東京メトロ半蔵門線神保町」 徒歩8分
竣工 1991年01月 構造 鉄骨造+RC
規模 地上8階, 地下1階 耐震基準 新耐震基準
床構造 3WAY 空調設備 個別空調
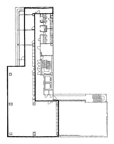
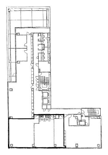
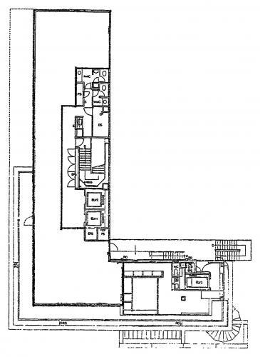
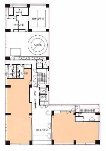
天井高 - 基準階面積 150.04坪(496m2)
コンセント容量 - 施工会社

最新の募集状況や類似物件については、
こちらにお問い合わせください。

帝都三崎町ビル 外観

外観

内見やお見積りなどの各種お問い合わせ

全物件
仲介手数料無料
仲介から
入居工事まで
ワンストップで対応
経験豊富なスタッフが
スピード感をもって
対応

周辺での似た条件の物件

非公開物件 多数あり!

お問い合わせフォーム