takeofficeなら掲載物件の仲介手数料は無料です

堀内三崎町ビル

住所 東京都千代田区神田三崎町2-18-11
交通 JR総武本線水道橋」 徒歩3分
竣工 1992年07月 構造 鉄骨造
規模 地上5階 耐震基準 新耐震基準
床構造 - 空調設備 個別空調
天井高 2600mm 基準階面積 57.27坪(189.32m2)
コンセント容量 - 施工会社

最新の募集状況や類似物件については、
こちらにお問い合わせください。

NOW PRINTING

外観

  • NOW PRINTING

    エントランス

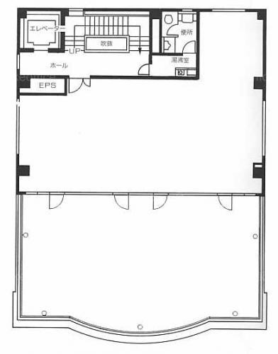
  • 基準階(2~4F)

    基準階(2~4F)

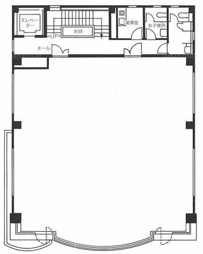
  • 1F

    1F

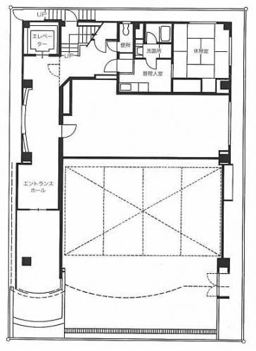
  • 5F

    5F

内見やお見積りなどの各種お問い合わせ

全物件
仲介手数料無料
仲介から
入居工事まで
ワンストップで対応
経験豊富なスタッフが
スピード感をもって
対応

周辺での似た条件の物件

非公開物件 多数あり!

お問い合わせフォーム