takeofficeなら掲載物件の仲介手数料は無料です

ポニービル

住所 東京都千代田区神田神保町1-19
交通 東京メトロ半蔵門線神保町」 徒歩3分
東京メトロ丸ノ内線淡路町」 徒歩6分
JR中央線御茶ノ水」 徒歩8分
竣工 1974年05月 構造 SRC
規模 地上7階, 地下1階 耐震基準 旧耐震基準
床構造 フリーアクセス 50mm 空調設備 個別空調
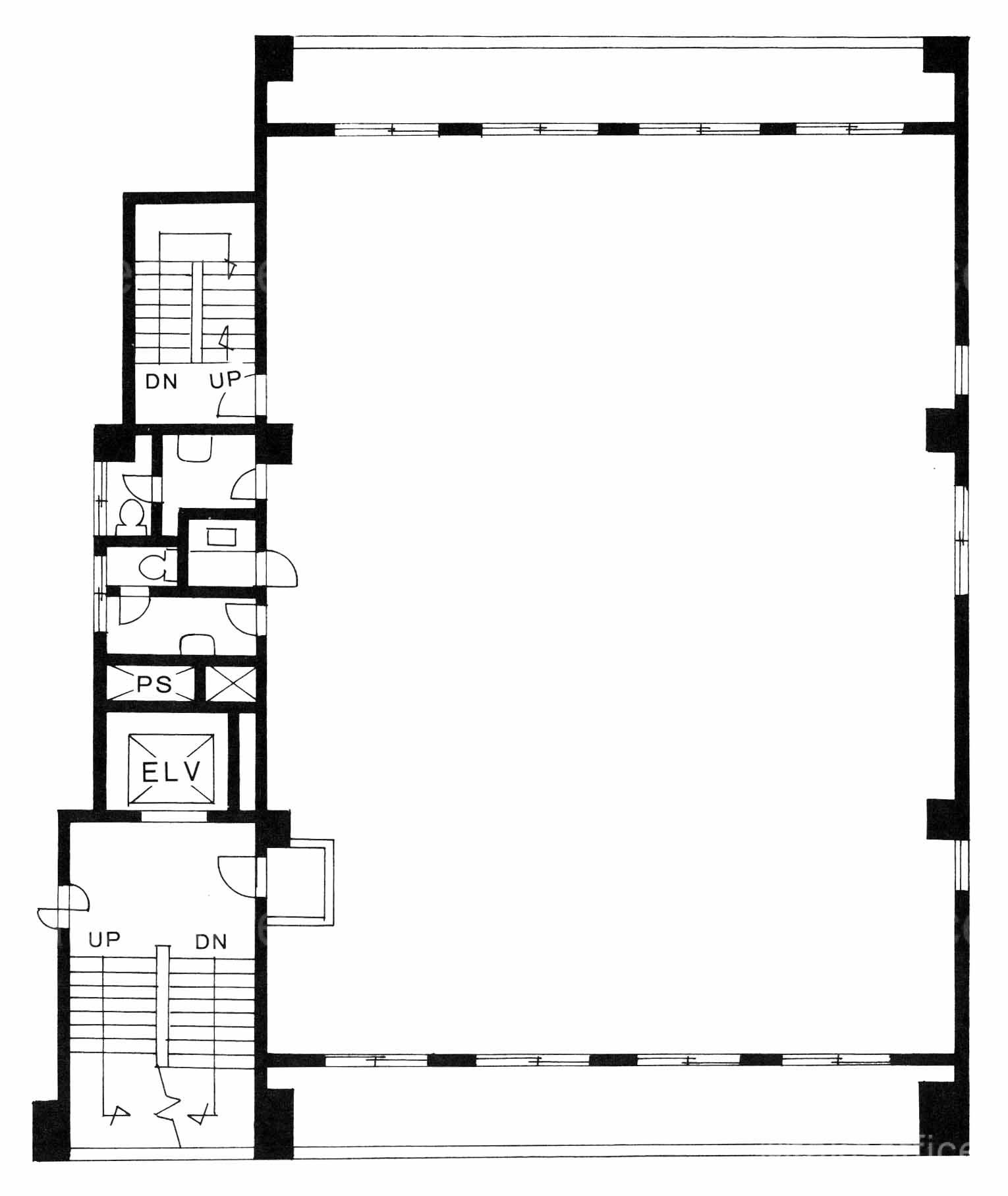
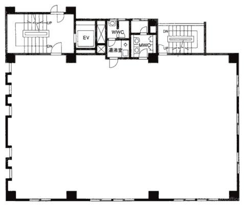
天井高 - 基準階面積 81坪(268m2)
コンセント容量 - 施工会社

最新の募集状況や類似物件については、
こちらにお問い合わせください。

NOW PRINTING

外観

  • NOW PRINTING

    エントランス

  • 6F

    6F

  • 5F

    5F

内見やお見積りなどの各種お問い合わせ

全物件
仲介手数料無料
仲介から
入居工事まで
ワンストップで対応
経験豊富なスタッフが
スピード感をもって
対応

周辺での似た条件の物件

非公開物件 多数あり!

お問い合わせフォーム