takeofficeなら掲載物件の仲介手数料は無料です

JHVビル

住所 東京都千代田区神田神保町1-54-4
交通 東京メトロ半蔵門線神保町」 徒歩3分
JR総武本線水道橋」 徒歩7分
東京メトロ丸ノ内線御茶ノ水」 徒歩10分
竣工 1992年06月 構造 SRC
規模 地上9階 耐震基準 新耐震基準
床構造 フリーアクセス 空調設備 個別空調
天井高 2600mm 基準階面積 51.72坪(170.98m2)
コンセント容量 - 施工会社

最新の募集状況や類似物件については、
こちらにお問い合わせください。

JHVビル 外観

外観

  • JHVビル エントランス写真

    エントランス

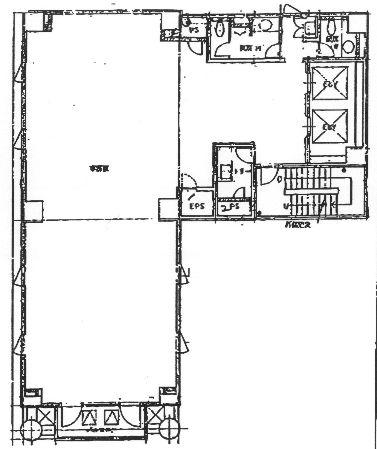
  • 4F

    4F

内見やお見積りなどの各種お問い合わせ

全物件
仲介手数料無料
仲介から
入居工事まで
ワンストップで対応
経験豊富なスタッフが
スピード感をもって
対応

周辺での似た条件の物件

非公開物件 多数あり!

お問い合わせフォーム