takeofficeなら掲載物件の仲介手数料は無料です

ワカヤギビル

住所 東京都千代田区神田神保町2-20-2
交通 東京メトロ半蔵門線神保町」 徒歩2分
東京メトロ東西線九段下」 徒歩6分
竣工 1983年04月 構造 RC
規模 地上7階, 地下0階 耐震基準 新耐震基準
床構造 - 空調設備 個別空調
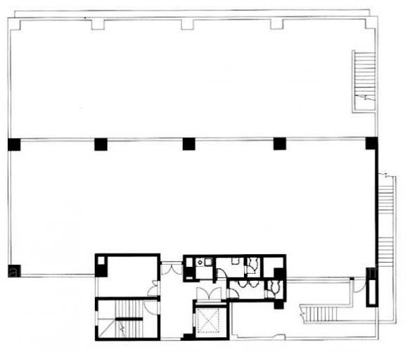
天井高 - 基準階面積 77坪(256m2)
コンセント容量 - 施工会社

最新の募集状況や類似物件については、
こちらにお問い合わせください。

NOW PRINTING

外観

  • NOW PRINTING

    エントランス

  • 2F

    2F

  • 1F

    1F

  • 3F

    3F

  • 4~5F

    4~5F

内見やお見積りなどの各種お問い合わせ

全物件
仲介手数料無料
仲介から
入居工事まで
ワンストップで対応
経験豊富なスタッフが
スピード感をもって
対応

周辺での似た条件の物件

非公開物件 多数あり!

お問い合わせフォーム