takeofficeなら掲載物件の仲介手数料は無料です

日建ビル

住所 東京都千代田区神田神保町3-1-6
交通 東京メトロ半蔵門線神保町」 徒歩2分
東京メトロ東西線九段下」 徒歩4分
東京メトロ東西線竹橋」 徒歩8分
竣工 1965年01月 構造 SRC
規模 地上11階, 地下1階 耐震基準 旧耐震基準
床構造 - 空調設備 -
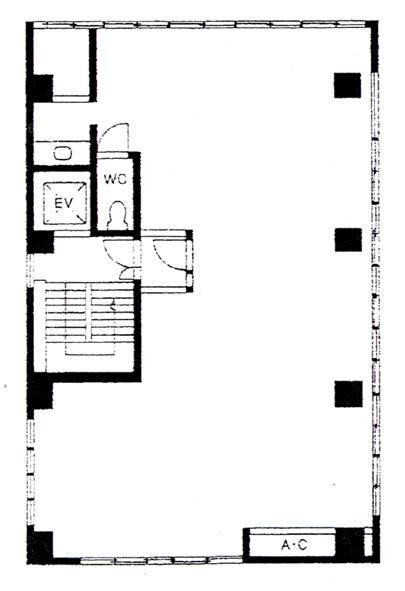
天井高 - 基準階面積 34.27坪(113.29m2)
コンセント容量 - 施工会社

最新の募集状況や類似物件については、
こちらにお問い合わせください。

日建ビル 外観

外観

  • 日建ビル エントランス写真

    エントランス

  • 2F

    2F

  • 3F

    3F

  • 9F

    9F

内見やお見積りなどの各種お問い合わせ

全物件
仲介手数料無料
仲介から
入居工事まで
ワンストップで対応
経験豊富なスタッフが
スピード感をもって
対応

周辺での似た条件の物件

非公開物件 多数あり!

お問い合わせフォーム