takeofficeなら掲載物件の仲介手数料は無料です

住友神保町ビル

住所 東京都千代田区神田神保町3-25
交通 東京メトロ半蔵門線九段下」 徒歩3分
都営三田線神保町」 徒歩4分
東京メトロ東西線竹橋」 徒歩7分
竣工 1986年06月 構造 SRC
規模 地上8階, 地下1階 耐震基準 新耐震基準
床構造 フリーアクセス 空調設備 個別空調
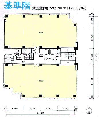
天井高 2600mm 基準階面積 179.38坪(592.99m2)
コンセント容量 85VA/m2 施工会社

最新の募集状況や類似物件については、
こちらにお問い合わせください。

住友神保町ビル 外観

外観

  • NOW PRINTING

    エントランス

  • 基準階

    基準階

建物パンフレット

建物パンフレットは作成時点のものであり、また計画段階のものも含まれる為、実際とは異なる場合がございます。

内見やお見積りなどの各種お問い合わせ

全物件
仲介手数料無料
仲介から
入居工事まで
ワンストップで対応
経験豊富なスタッフが
スピード感をもって
対応

周辺での似た条件の物件

非公開物件 多数あり!

お問い合わせフォーム