takeofficeなら掲載物件の仲介手数料は無料です

帝国書院ビル

住所 東京都千代田区神田神保町3-29-11
交通 東京メトロ半蔵門線神保町」 徒歩2分
東京メトロ東西線竹橋」 徒歩4分
竣工 1988年11月 構造 SRC
規模 地上8階 耐震基準 新耐震基準
床構造 フリーアクセス 50mm 空調設備 個別空調
天井高 2550mm 基準階面積 149.4坪(493.9m2)
コンセント容量 34VA/m2 施工会社

最新の募集状況や類似物件については、
こちらにお問い合わせください。

帝国書院ビル 外観

外観

  • 帝国書院ビル エントランス写真

    エントランス

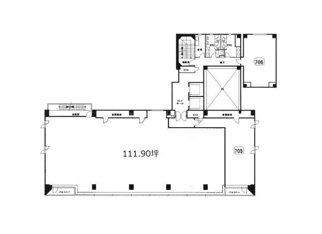
  • 基準階

    基準階

内見やお見積りなどの各種お問い合わせ

全物件
仲介手数料無料
仲介から
入居工事まで
ワンストップで対応
経験豊富なスタッフが
スピード感をもって
対応

周辺での似た条件の物件

非公開物件 多数あり!

お問い合わせフォーム