takeofficeなら掲載物件の仲介手数料は無料です

Gaia Force Building

住所 東京都千代田区神田三崎町2-21-6
交通 JR総武本線水道橋」 徒歩1分
竣工 2023年01月 構造 -
規模 地上6階 耐震基準 新耐震基準
床構造 - 空調設備 個別空調
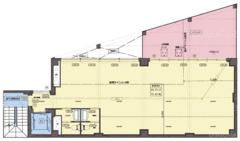
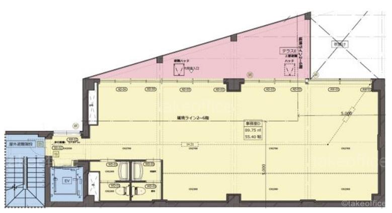
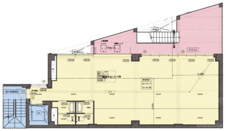
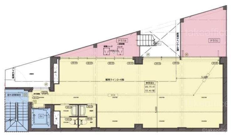
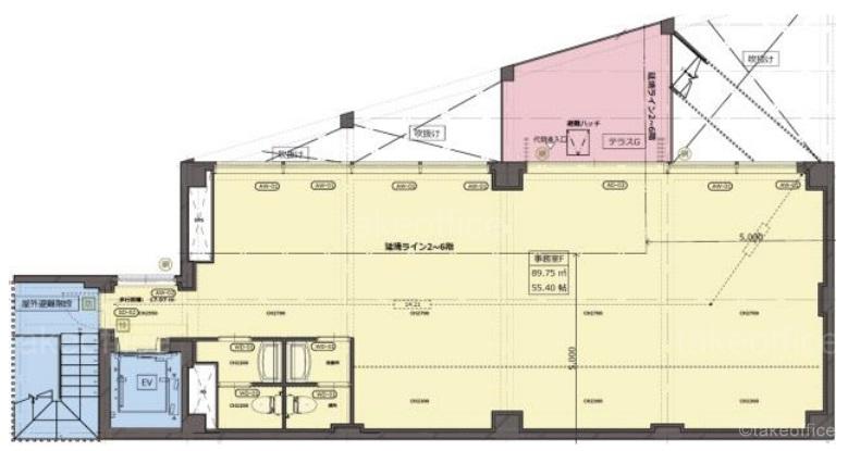
天井高 - 基準階面積 30.2坪(99.83m2)
コンセント容量 - 施工会社

最新の募集状況や類似物件については、
こちらにお問い合わせください。

Gaia Force Building 外観

外観

内見やお見積りなどの各種お問い合わせ

全物件
仲介手数料無料
仲介から
入居工事まで
ワンストップで対応
経験豊富なスタッフが
スピード感をもって
対応

周辺での似た条件の物件

非公開物件 多数あり!

お問い合わせフォーム