takeofficeなら掲載物件の仲介手数料は無料です

曙杉館(ショサンカン)

住所 東京都千代田区飯田橋1-3-2
交通 東京メトロ半蔵門線九段下」 徒歩3分
東京メトロ有楽町線飯田橋」 徒歩4分
竣工 1995年09月 構造 SRC
規模 地上11階, 地下1階 耐震基準 新耐震基準
床構造 フリーアクセス 空調設備 個別空調
天井高 2500mm 基準階面積 102.29坪(338.15m2)
コンセント容量 - 施工会社

最新の募集状況や類似物件については、
こちらにお問い合わせください。

曙杉館(ショサンカン) 外観

外観

  • 曙杉館(ショサンカン) エントランス写真

    エントランス

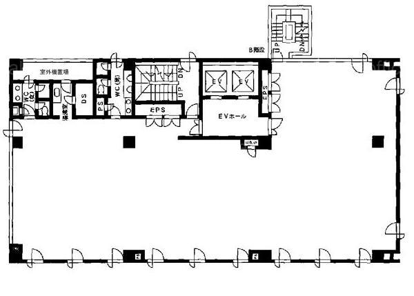
  • 基準階

    基準階

内見やお見積りなどの各種お問い合わせ

全物件
仲介手数料無料
仲介から
入居工事まで
ワンストップで対応
経験豊富なスタッフが
スピード感をもって
対応

周辺での似た条件の物件

非公開物件 多数あり!

お問い合わせフォーム