takeofficeなら掲載物件の仲介手数料は無料です

教販九段ビル

住所 東京都千代田区飯田橋1-5-10
交通 東京メトロ半蔵門線九段下」 徒歩4分
東京メトロ東西線飯田橋」 徒歩5分
JR総武本線飯田橋」 徒歩8分
竣工 1994年03月 構造 鉄骨造+SRC
規模 地上8階, 地下1階 耐震基準 新耐震基準
床構造 フリーアクセス 80mm 空調設備 個別空調
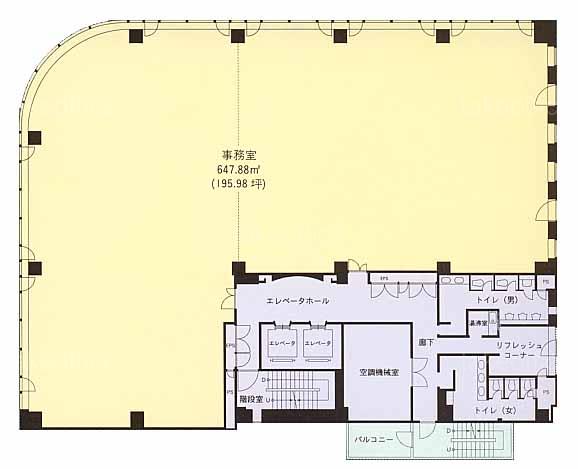
天井高 2600mm 基準階面積 195.98坪(647.88m2)
コンセント容量 - 施工会社

最新の募集状況や類似物件については、
こちらにお問い合わせください。

教販九段ビル 外観

外観

  • 教販九段ビル エントランス写真

    エントランス

  • 基準階

    基準階

  • 1F

    1F

  • 2F

    2F

建物パンフレット

建物パンフレットは作成時点のものであり、また計画段階のものも含まれる為、実際とは異なる場合がございます。

内見やお見積りなどの各種お問い合わせ

全物件
仲介手数料無料
仲介から
入居工事まで
ワンストップで対応
経験豊富なスタッフが
スピード感をもって
対応

周辺での似た条件の物件

非公開物件 多数あり!

お問い合わせフォーム