takeofficeなら掲載物件の仲介手数料は無料です

飯田橋ばんらいビル

住所 東京都千代田区飯田橋3-3-11
交通 JR総武本線飯田橋」 徒歩4分
都営三田線水道橋」 徒歩7分
東京メトロ半蔵門線九段下」 徒歩10分
竣工 1983年09月 構造 SRC
規模 地上8階 耐震基準 新耐震基準
床構造 - 空調設備 個別空調
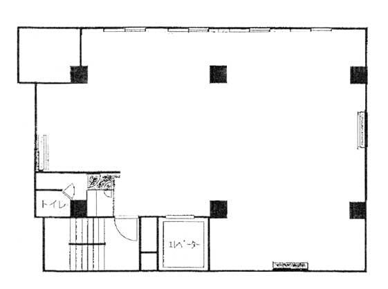
天井高 - 基準階面積 32.6坪(107.77m2)
コンセント容量 - 施工会社

最新の募集状況や類似物件については、
こちらにお問い合わせください。

飯田橋ばんらいビル 外観

外観

  • 飯田橋ばんらいビル エントランス写真

    エントランス

  • 3F

    3F

内見やお見積りなどの各種お問い合わせ

全物件
仲介手数料無料
仲介から
入居工事まで
ワンストップで対応
経験豊富なスタッフが
スピード感をもって
対応

周辺での似た条件の物件

非公開物件 多数あり!

お問い合わせフォーム