takeofficeなら掲載物件の仲介手数料は無料です

日産ビル

住所 東京都千代田区飯田橋4-8-6
交通 JR総武本線飯田橋」 徒歩2分
東京メトロ東西線飯田橋」 徒歩2分
都営新宿線九段下」 徒歩10分
竣工 1959年09月 構造 RC
規模 地上5階, 地下1階 耐震基準 旧耐震基準
床構造 - 空調設備 個別空調
天井高 - 基準階面積 29坪(97m2)
コンセント容量 - 施工会社

最新の募集状況や類似物件については、
こちらにお問い合わせください。

日産ビル 外観

外観

  • 日産ビル エントランス写真

    エントランス

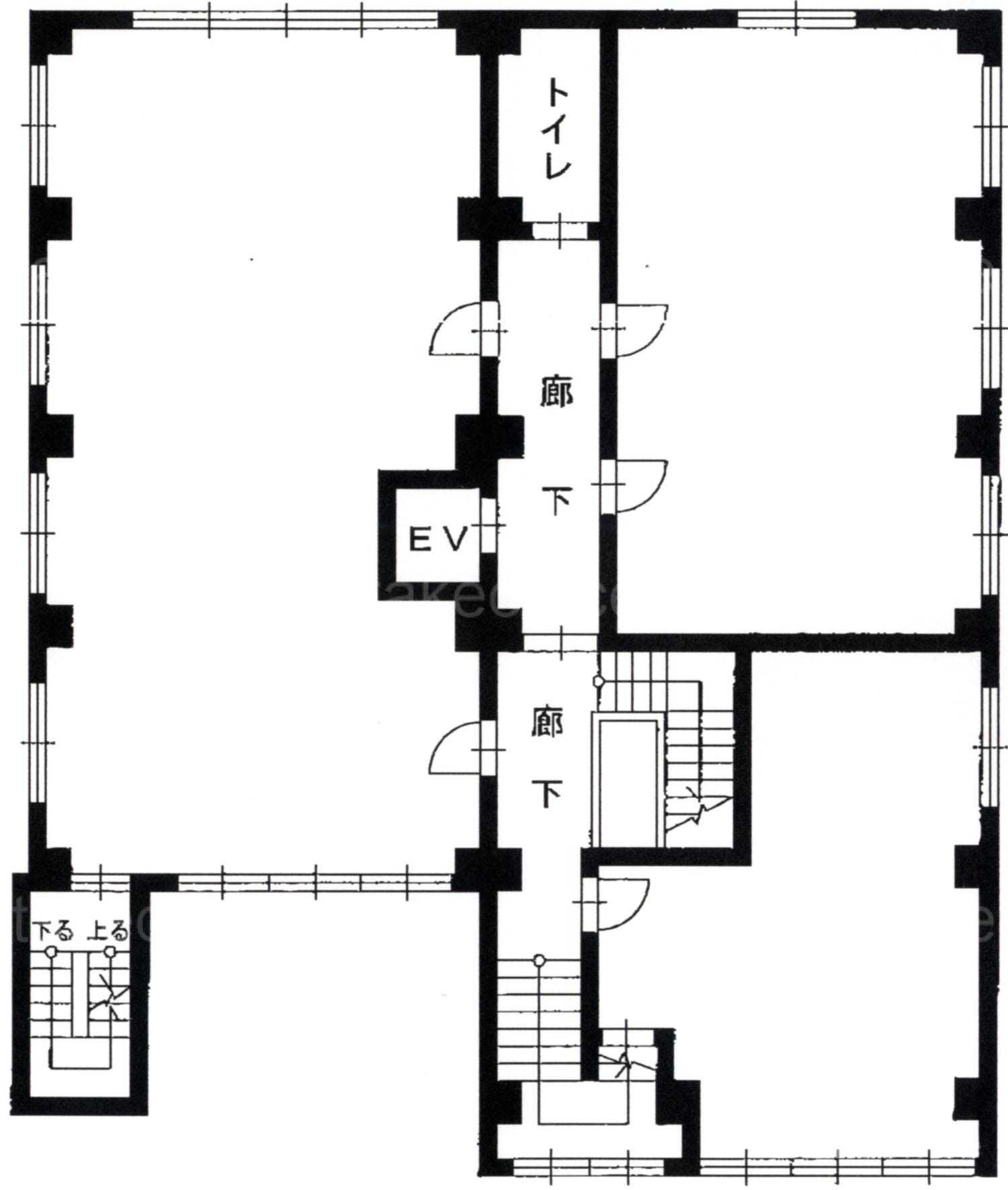
  • 2F

    2F

内見やお見積りなどの各種お問い合わせ

全物件
仲介手数料無料
仲介から
入居工事まで
ワンストップで対応
経験豊富なスタッフが
スピード感をもって
対応

周辺での似た条件の物件

非公開物件 多数あり!

お問い合わせフォーム