takeofficeなら掲載物件の仲介手数料は無料です

峰ビル

住所 東京都千代田区富士見2-11-11
交通 JR総武本線飯田橋」 徒歩3分
東京メトロ有楽町線飯田橋」 徒歩3分
東京メトロ半蔵門線九段下」 徒歩10分
竣工 1994年09月 構造 SRC
規模 地上7階, 地下0階 耐震基準 新耐震基準
床構造 フリーアクセス 空調設備 個別空調
天井高 - 基準階面積 126坪(417m2)
コンセント容量 - 施工会社

最新の募集状況や類似物件については、
こちらにお問い合わせください。

峰ビル 外観

外観

  • 峰ビル エントランス写真

    エントランス

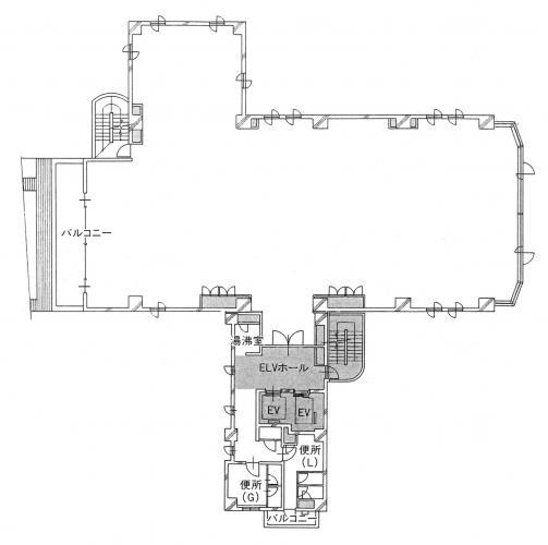
  • 3F

    3F

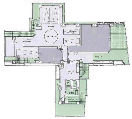
  • 1F

    1F

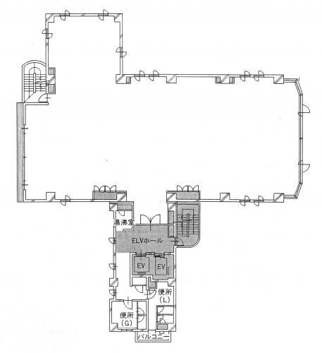
  • 2F

    2F

  • 4F

    4F

  • 5F

    5F

  • 6F

    6F

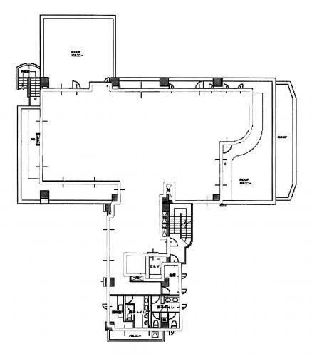
  • 7F

    7F

内見やお見積りなどの各種お問い合わせ

全物件
仲介手数料無料
仲介から
入居工事まで
ワンストップで対応
経験豊富なスタッフが
スピード感をもって
対応

周辺での似た条件の物件

非公開物件 多数あり!

お問い合わせフォーム