takeofficeなら掲載物件の仲介手数料は無料です

青葉ビル別館

住所 東京都千代田区九段南2-3-11
交通 東京メトロ半蔵門線九段下」 徒歩8分
JR総武本線市ヶ谷」 徒歩9分
東京メトロ有楽町線市ヶ谷」 徒歩9分
竣工 1986年08月 構造 -
規模 地上6階 耐震基準 新耐震基準
床構造 - 空調設備 個別空調
天井高 - 基準階面積 25.59坪(84.6m2)
コンセント容量 - 施工会社

最新の募集状況や類似物件については、
こちらにお問い合わせください。

青葉ビル別館 外観

外観

  • 青葉ビル別館 エントランス写真

    エントランス

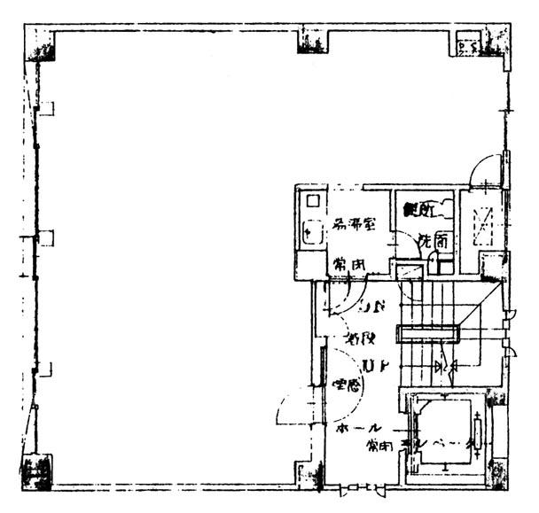
  • 基準階(2~5F)

    基準階(2~5F)

内見やお見積りなどの各種お問い合わせ

全物件
仲介手数料無料
仲介から
入居工事まで
ワンストップで対応
経験豊富なスタッフが
スピード感をもって
対応

周辺での似た条件の物件

非公開物件 多数あり!

お問い合わせフォーム