takeofficeなら掲載物件の仲介手数料は無料です

TOBUNSHA(塔文社)ビル

住所 東京都千代田区九段南2-5-1
交通 東京メトロ半蔵門線九段下」 徒歩7分
東京メトロ半蔵門線半蔵門」 徒歩7分
JR総武本線市ヶ谷」 徒歩10分
竣工 1993年03月 構造 RC
規模 地上6階 耐震基準 新耐震基準
床構造 フリーアクセス 空調設備 個別空調
天井高 2600mm 基準階面積 45.48坪(150.35m2)
コンセント容量 - 施工会社

最新の募集状況や類似物件については、
こちらにお問い合わせください。

TOBUNSHA(塔文社)ビル 外観

外観

  • TOBUNSHA(塔文社)ビル エントランス写真

    エントランス

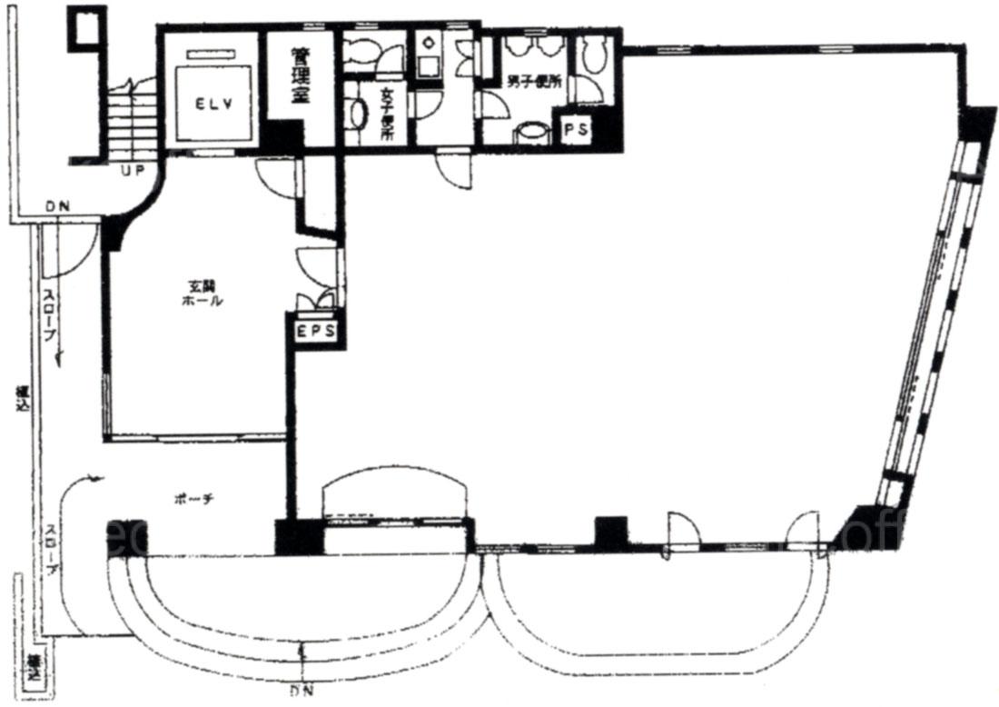
  • 基準階 2F~5F

    基準階 2F~5F

  • 1F

    1F

  • 6F

    6F

内見やお見積りなどの各種お問い合わせ

全物件
仲介手数料無料
仲介から
入居工事まで
ワンストップで対応
経験豊富なスタッフが
スピード感をもって
対応

周辺での似た条件の物件

非公開物件 多数あり!

お問い合わせフォーム