takeofficeなら掲載物件の仲介手数料は無料です

久保寺ツインタワービル

住所 東京都千代田区九段南2-9-4
交通 JR総武本線市ヶ谷」 徒歩8分
東京メトロ有楽町線市ヶ谷」 徒歩8分
竣工 1986年12月 構造 鉄骨造
規模 地上7階 耐震基準 新耐震基準
床構造 3WAY 空調設備 個別空調
天井高 - 基準階面積 62.37坪(206.18m2)
コンセント容量 - 施工会社

最新の募集状況や類似物件については、
こちらにお問い合わせください。

久保寺ツインタワービル 外観

外観

  • 久保寺ツインタワービル エントランス写真

    エントランス

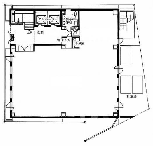
  • 基準階(2~7F)

    基準階(2~7F)

  • 1F

    1F

内見やお見積りなどの各種お問い合わせ

全物件
仲介手数料無料
仲介から
入居工事まで
ワンストップで対応
経験豊富なスタッフが
スピード感をもって
対応

周辺での似た条件の物件

非公開物件 多数あり!

お問い合わせフォーム