takeofficeなら掲載物件の仲介手数料は無料です

久保寺ビルディング

住所 東京都千代田区九段南3-1-1
交通 JR総武本線市ヶ谷」 徒歩8分
竣工 1979年02月 構造 SRC
規模 地上8階, 地下1階 耐震基準 旧耐震基準
床構造 フリーアクセス 75mm 空調設備 個別空調
天井高 2400mm 基準階面積 110坪(364m2)
コンセント容量 - 施工会社

最新の募集状況や類似物件については、
こちらにお問い合わせください。

久保寺ビルディング 外観

外観

  • 久保寺ビルディング エントランス写真

    エントランス

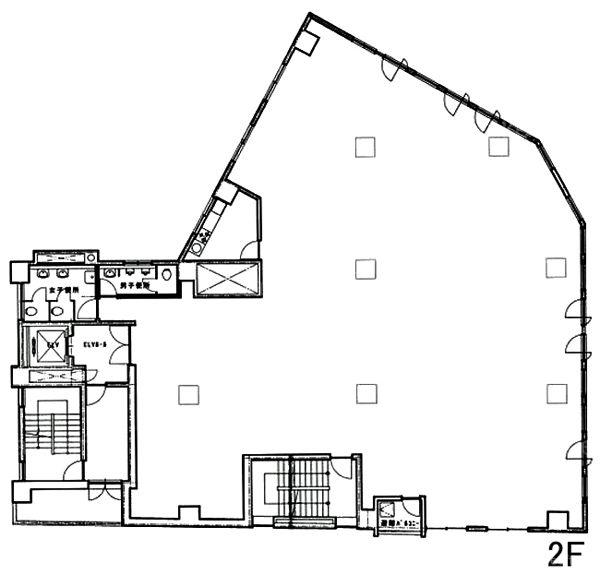
  • 基準階

    基準階

  • 5~7F

    5~7F

内見やお見積りなどの各種お問い合わせ

全物件
仲介手数料無料
仲介から
入居工事まで
ワンストップで対応
経験豊富なスタッフが
スピード感をもって
対応

周辺での似た条件の物件

非公開物件 多数あり!

お問い合わせフォーム