takeofficeなら掲載物件の仲介手数料は無料です

徳海屋ビル

住所 東京都千代田区九段北1-12-4
交通 東京メトロ半蔵門線九段下」 徒歩1分
JR総武本線飯田橋」 徒歩8分
都営新宿線神保町」 徒歩8分
竣工 1975年03月 構造 SRC
規模 地上11階, 地下1階 耐震基準 新耐震基準
床構造 フリーアクセス 空調設備 個別空調
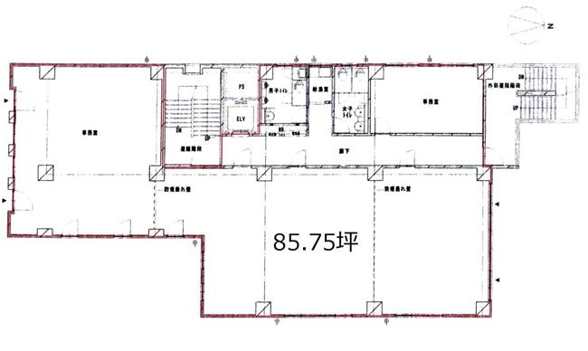
天井高 2400mm 基準階面積 73坪(241m2)
コンセント容量 - 施工会社

最新の募集状況や類似物件については、
こちらにお問い合わせください。

徳海屋ビル 外観

外観

  • 徳海屋ビル エントランス写真

    エントランス

内見やお見積りなどの各種お問い合わせ

全物件
仲介手数料無料
仲介から
入居工事まで
ワンストップで対応
経験豊富なスタッフが
スピード感をもって
対応

周辺での似た条件の物件

非公開物件 多数あり!

お問い合わせフォーム