takeofficeなら掲載物件の仲介手数料は無料です

九段川島ビル

住所 東京都千代田区九段北1-12-13
交通 東京メトロ半蔵門線九段下」 徒歩4分
都営新宿線神保町」 徒歩8分
JR総武本線飯田橋」 徒歩9分
竣工 1992年11月 構造 SRC
規模 地上6階, 地下1階 耐震基準 新耐震基準
床構造 フリーアクセス 空調設備 個別空調
天井高 - 基準階面積 45.14坪(149.22m2)
コンセント容量 - 施工会社

最新の募集状況や類似物件については、
こちらにお問い合わせください。

九段川島ビル 外観

外観

  • 九段川島ビル エントランス写真

    エントランス

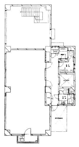
  • 基準階(3~6F)

    基準階(3~6F)

  • 1F

    1F

  • 2F

    2F

内見やお見積りなどの各種お問い合わせ

全物件
仲介手数料無料
仲介から
入居工事まで
ワンストップで対応
経験豊富なスタッフが
スピード感をもって
対応

周辺での似た条件の物件

非公開物件 多数あり!

お問い合わせフォーム