takeofficeなら掲載物件の仲介手数料は無料です

市ヶ谷MSビル

住所 東京都千代田区九段北4-1-9
交通 JR総武本線市ヶ谷」 徒歩2分
東京メトロ半蔵門線半蔵門」 徒歩10分
東京メトロ有楽町線麹町」 徒歩11分
竣工 1992年12月 構造 SRC
規模 地上9階 耐震基準 新耐震基準
床構造 フリーアクセス 100mm 空調設備 個別空調
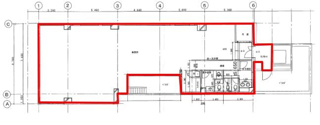
天井高 2500mm 基準階面積 63.89坪(211.21m2)
コンセント容量 59VA/m2 施工会社 ナカノコーポレーション

最新の募集状況や類似物件については、
こちらにお問い合わせください。

市ヶ谷MSビル 外観

外観

建物パンフレット

建物パンフレットは作成時点のものであり、また計画段階のものも含まれる為、実際とは異なる場合がございます。

内見やお見積りなどの各種お問い合わせ

全物件
仲介手数料無料
仲介から
入居工事まで
ワンストップで対応
経験豊富なスタッフが
スピード感をもって
対応

周辺での似た条件の物件

非公開物件 多数あり!

お問い合わせフォーム