takeofficeなら掲載物件の仲介手数料は無料です

第1稲穂ビル

住所 東京都千代田区九段北4-1-26
交通 JR総武本線市ヶ谷」 徒歩4分
東京メトロ半蔵門線半蔵門」 徒歩12分
都営大江戸線牛込神楽坂」 徒歩14分
竣工 1975年10月 構造 RC
規模 地上5階, 地下1階 耐震基準 旧耐震基準
床構造 - 空調設備 個別空調
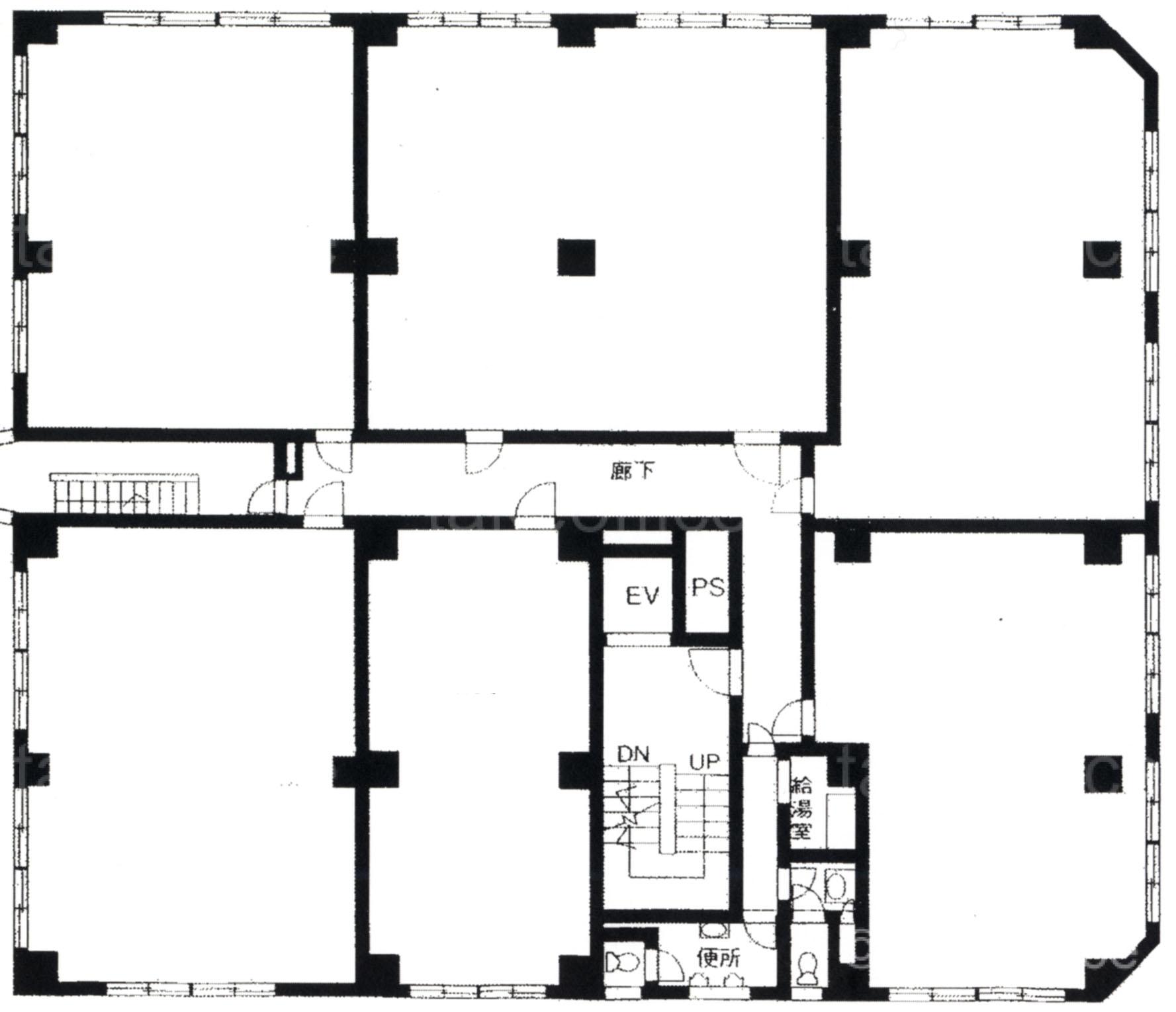
天井高 2270mm 基準階面積 74坪(246m2)
コンセント容量 - 施工会社

最新の募集状況や類似物件については、
こちらにお問い合わせください。

第1稲穂ビル 外観

外観

  • 第1稲穂ビル エントランス写真

    エントランス

  • 2F

    2F

内見やお見積りなどの各種お問い合わせ

全物件
仲介手数料無料
仲介から
入居工事まで
ワンストップで対応
経験豊富なスタッフが
スピード感をもって
対応

周辺での似た条件の物件

非公開物件 多数あり!

お問い合わせフォーム