takeofficeなら掲載物件の仲介手数料は無料です

九段岡澤ビル

住所 東京都千代田区九段北1-7-3
交通 東京メトロ半蔵門線九段下」 徒歩2分
都営新宿線神保町」 徒歩6分
JR総武本線水道橋」 徒歩10分
竣工 2002年01月 構造 鉄骨造
規模 地上8階 耐震基準 新耐震基準
床構造 フリーアクセス 空調設備 個別空調
天井高 - 基準階面積 17.6坪(58.18m2)
コンセント容量 - 施工会社

最新の募集状況や類似物件については、
こちらにお問い合わせください。

九段岡澤ビル 外観

外観

  • 九段岡澤ビル エントランス写真

    エントランス

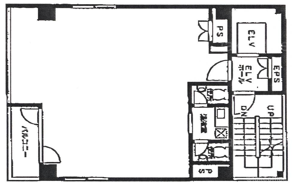
  • 基準階

    基準階

内見やお見積りなどの各種お問い合わせ

全物件
仲介手数料無料
仲介から
入居工事まで
ワンストップで対応
経験豊富なスタッフが
スピード感をもって
対応

周辺での似た条件の物件

非公開物件 多数あり!

お問い合わせフォーム