takeofficeなら掲載物件の仲介手数料は無料です

ノザワビルディング

住所 東京都千代田区一番町9-8
交通 東京メトロ半蔵門線半蔵門」 徒歩2分
竣工 1988年05月 構造 鉄骨造
規模 地上8階, 地下1階 耐震基準 新耐震基準
床構造 - 空調設備 個別空調
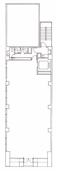
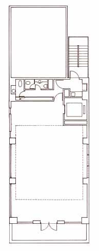
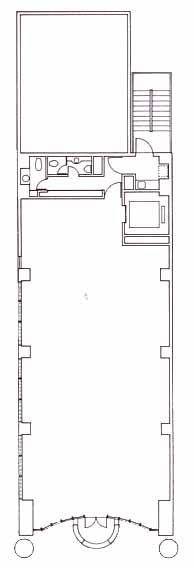
天井高 2500mm 基準階面積 45.48坪(150.35m2)
コンセント容量 - 施工会社

最新の募集状況や類似物件については、
こちらにお問い合わせください。

ノザワビルディング 外観

外観

  • ノザワビルディング エントランス写真

    エントランス

  • 4~5F

    4~5F

  • 1F

    1F

  • 2F

    2F

  • 3F

    3F

  • 6F

    6F

  • 7F

    7F

  • 8F

    8F

内見やお見積りなどの各種お問い合わせ

全物件
仲介手数料無料
仲介から
入居工事まで
ワンストップで対応
経験豊富なスタッフが
スピード感をもって
対応

周辺での似た条件の物件

非公開物件 多数あり!

お問い合わせフォーム