takeofficeなら掲載物件の仲介手数料は無料です

ワールドタイムズビル

住所 東京都千代田区一番町10-7
交通 東京メトロ有楽町線麹町」 徒歩3分
東京メトロ半蔵門線半蔵門」 徒歩8分
JR総武本線市ヶ谷」 徒歩10分
竣工 1988年08月 構造 鉄骨造
規模 地上5階, 地下0階 耐震基準 新耐震基準
床構造 - 空調設備 個別空調
天井高 2500mm 基準階面積 57坪(190m2)
コンセント容量 - 施工会社

最新の募集状況や類似物件については、
こちらにお問い合わせください。

ワールドタイムズビル 外観

外観

  • NOW PRINTING

    エントランス

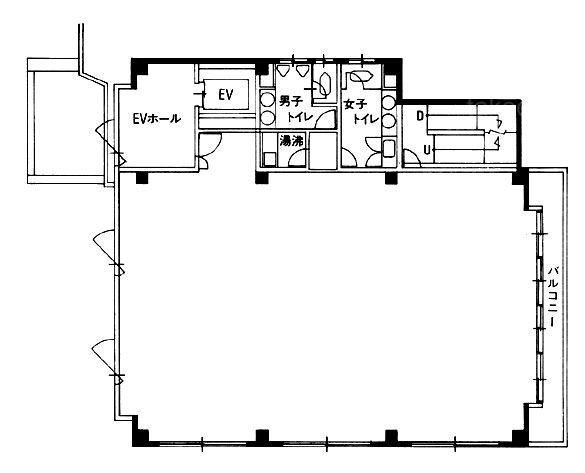
  • 基準階(3~4F)

    基準階(3~4F)

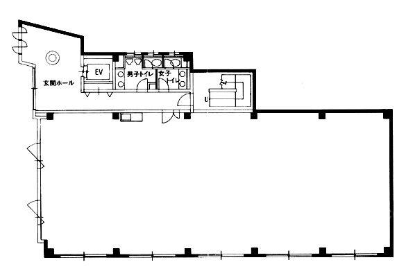
  • 1F

    1F

  • 2F

    2F

  • 5F

    5F

内見やお見積りなどの各種お問い合わせ

全物件
仲介手数料無料
仲介から
入居工事まで
ワンストップで対応
経験豊富なスタッフが
スピード感をもって
対応

周辺での似た条件の物件

非公開物件 多数あり!

お問い合わせフォーム