takeofficeなら掲載物件の仲介手数料は無料です

一番町ウエストビル

住所 東京都千代田区一番町10-8
交通 東京メトロ半蔵門線半蔵門」 徒歩4分
東京メトロ有楽町線麹町」 徒歩5分
都営新宿線市ヶ谷」 徒歩11分
竣工 1992年02月 構造 SRC
規模 地上7階, 地下1階 耐震基準 新耐震基準
床構造 フリーアクセス 空調設備 個別空調
天井高 2700mm 基準階面積 74.83坪(247.37m2)
コンセント容量 - 施工会社

最新の募集状況や類似物件については、
こちらにお問い合わせください。

一番町ウエストビル 外観

外観

  • NOW PRINTING

    エントランス

  • 基準階(2~5F)

    基準階(2~5F)

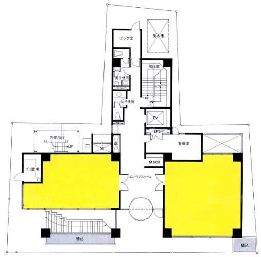
  • 1F

    1F

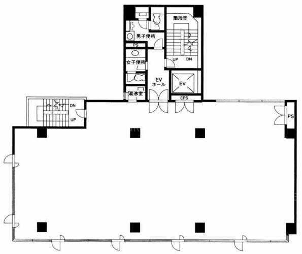
  • 6F

    6F

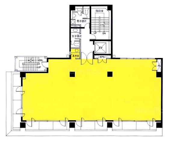
  • 7F

    7F

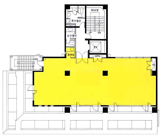
  • B1F

    B1F

内見やお見積りなどの各種お問い合わせ

全物件
仲介手数料無料
仲介から
入居工事まで
ワンストップで対応
経験豊富なスタッフが
スピード感をもって
対応

周辺での似た条件の物件

非公開物件 多数あり!

お問い合わせフォーム