takeofficeなら掲載物件の仲介手数料は無料です

共同ビル(一番町)

住所 東京都千代田区一番町16-1
交通 東京メトロ半蔵門線半蔵門」 徒歩3分
都営新宿線市ヶ谷」 徒歩7分
東京メトロ有楽町線麹町」 徒歩7分
竣工 1987年12月 構造 RC
規模 地上6階, 地下1階 耐震基準 新耐震基準
床構造 フリーアクセス 100mm 空調設備 個別空調
天井高 2500mm 基準階面積 175.61坪(580.53m2)
コンセント容量 - 施工会社
坪面積 用途 賃料 坪単価 共益費 入居可能日
3 174.62坪 事務所 相談 相談 相談
共同ビル(一番町) 外観

外観

  • 共同ビル(一番町) エントランス写真

    エントランス

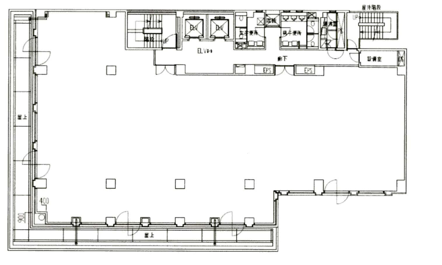
  • 基準階

    基準階

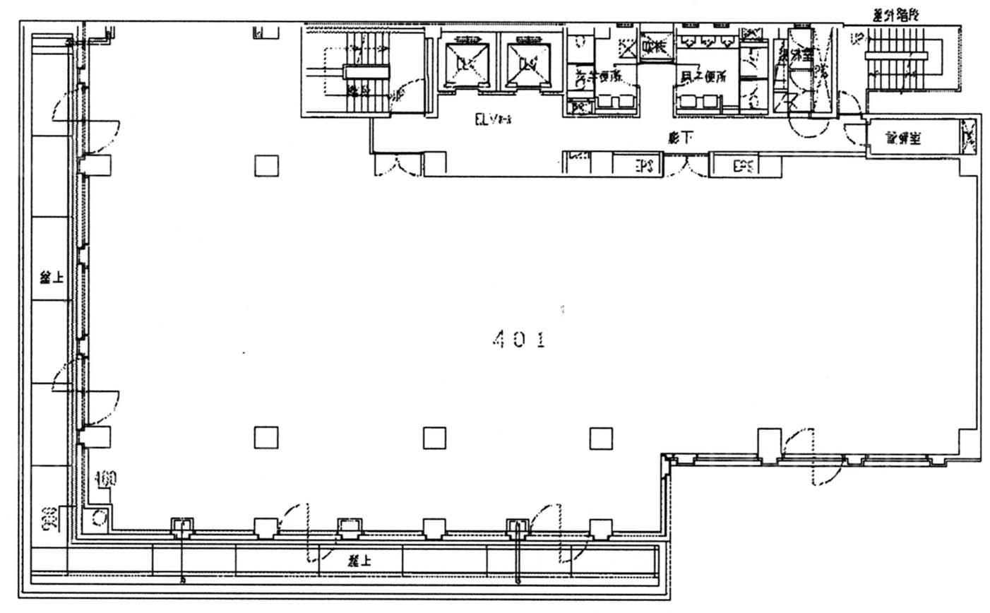
  • 401

    401

内見やお見積りなどの各種お問い合わせ

全物件
仲介手数料無料
仲介から
入居工事まで
ワンストップで対応
経験豊富なスタッフが
スピード感をもって
対応

※「ご相談」と記載されている項目について
賃貸人が募集賃料条件を守秘義務の関係から明示していない場合に、【ご相談】と記載しております。
フリーレント(賃料免除)期間、使用面積、入居時期、テナント様の与信などによりご提示できる条件が若干変化いたします。
お手数ですが、詳細につきましては、上記よりお問い合わせください。

周辺での似た条件の物件

非公開物件 多数あり!

お問い合わせフォーム