takeofficeなら掲載物件の仲介手数料は無料です

麹町御幸ビル

住所 東京都千代田区二番町3-4
交通 東京メトロ有楽町線麹町」 徒歩1分
東京メトロ半蔵門線半蔵門」 徒歩7分
JR総武本線四ツ谷」 徒歩8分
竣工 1978年07月 構造 SRC
規模 地上8階, 地下2階 耐震基準 新耐震基準
床構造 フリーアクセス 70mm 空調設備 個別空調
天井高 2600mm 基準階面積 120.34坪(397.82m2)
コンセント容量 - 施工会社

最新の募集状況や類似物件については、
こちらにお問い合わせください。

麹町御幸ビル 外観

外観

  • 麹町御幸ビル エントランス写真

    エントランス

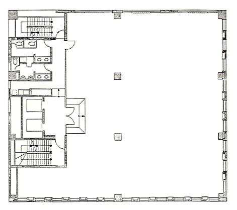
  • 基準階

    基準階

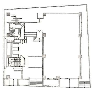
  • 1F

    1F

内見やお見積りなどの各種お問い合わせ

全物件
仲介手数料無料
仲介から
入居工事まで
ワンストップで対応
経験豊富なスタッフが
スピード感をもって
対応

周辺での似た条件の物件

非公開物件 多数あり!

お問い合わせフォーム