takeofficeなら掲載物件の仲介手数料は無料です

BDA二番町ビル

住所 東京都千代田区二番町12-12
交通 東京メトロ有楽町線麹町」 徒歩3分
東京メトロ丸ノ内線四ツ谷」 徒歩6分
東京メトロ南北線市ヶ谷」 徒歩7分
竣工 1990年 構造 RC
規模 地上5階 耐震基準 新耐震基準
床構造 - 空調設備 個別空調
天井高 2300mm 基準階面積 67坪(222m2)
コンセント容量 - 施工会社

最新の募集状況や類似物件については、
こちらにお問い合わせください。

BDA二番町ビル 外観

外観

  • BDA二番町ビル エントランス写真

    エントランス

  • 基準階(2~3F)

    基準階(2~3F)

  • 1F

    1F

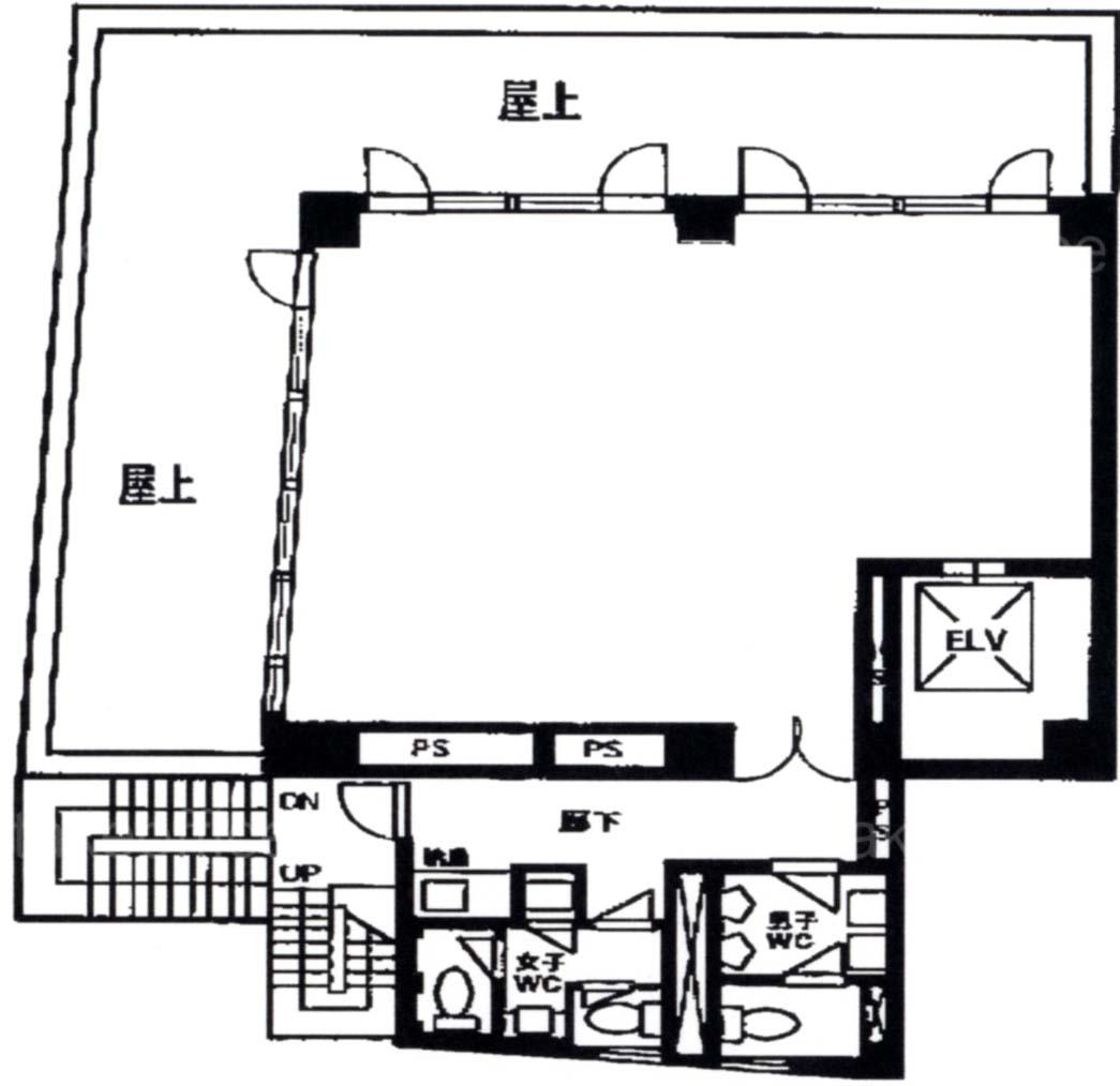
  • 5F

    5F

内見やお見積りなどの各種お問い合わせ

全物件
仲介手数料無料
仲介から
入居工事まで
ワンストップで対応
経験豊富なスタッフが
スピード感をもって
対応

周辺での似た条件の物件

非公開物件 多数あり!

お問い合わせフォーム